Nieruchomości w Burgasie
Burgas jest administracyjnym, kulturalnym i turystycznym centrum południowo-wschodniej Bułgarii. Położony jest w pobliżu Zatoki Burgas na wybrzeżu Morza Czarnego. Jest to jeden z największych portów w Bułgarii, położony na wysokości 17 metrów nad poziomem morza.
W mieście doskonała infrastruktura i dobre połączenia komunikacyjne: znajduje się tu dworzec autobusowy i kolejowy, które zapewniają regularny transport do Sofii, Płowdiwu, Warny i innych miejsc. W mieście znajduje się również międzynarodowe lotnisko.
W okolicy znajduje się kilka plaż. Jedną z nich jest Plaża Centralna, której piasek jest mieszaniną jasnych i ciemnych ziaren magnetytu. A w pobliżu miasta znajdują się malownicze jeziora słone i słodkowodne.
Znane kurorty morskie w Bułgarii znajdują się w odległości 30 minut jazdy od Burgasu: Sozopol, Pomorie, Słoneczny Brzeg, Sweti Włas i inne.
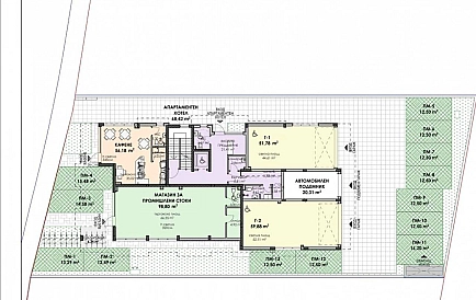
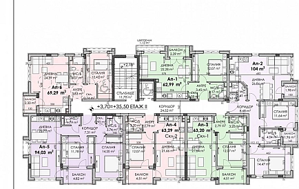
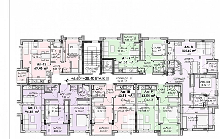
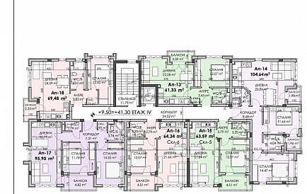
Cechy nieruchomości w Burgasie
Burgas jest idealnym miejscem na zakup domu w Bułgarii nad morzem. Istnieje popyt na mieszkania i apartamenty w komfortowych zespołach mieszkaniowych w przystępnych cenach na wybrzeżu w obszarach Sarafovo, Lazur, Izgrev, Meden Rudnik, Slaveikov, Zornica.
Ceny nieruchomości w Burgasie są jednymi z najbardziej przystępnych na bułgarskim wybrzeżu Morza Czarnego i zaczynają się od 440 euro za metr kwadratowy. W katalogu agencji nieruchomości BolgarskiyDom znajdziecie 268 różnych wariantów domów, mieszkań i apartamentów. U nas możecie kupić mieszkanie w Burgasie na rynku wtórnym lub od dewelopera w cenie od 58 250 euro.














































































































































